Size

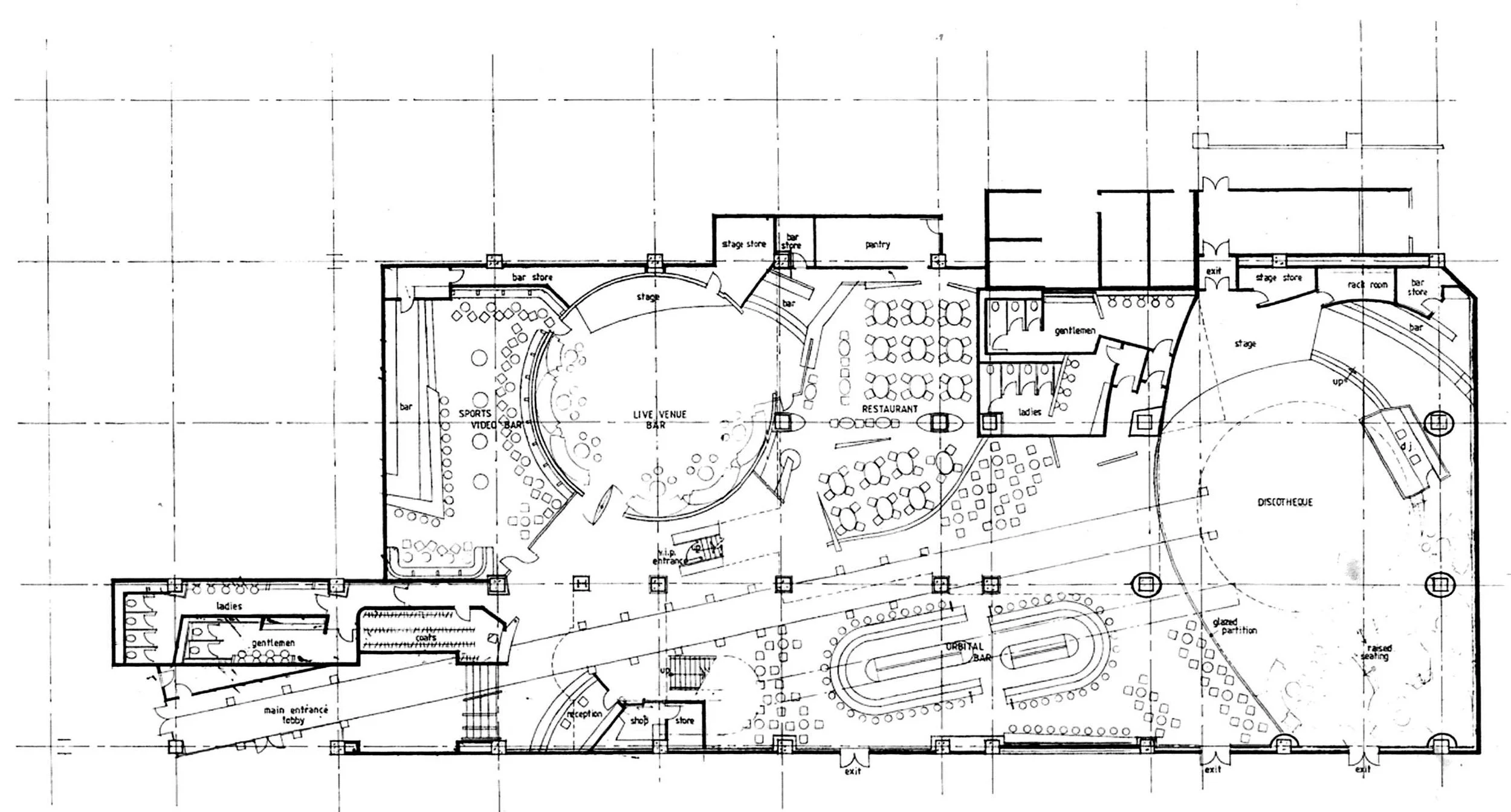
Bosphorus Hotel

Istanbul

Seven bars and restaurants combine to deliver the most comprehensive entertainment facility available.

The club divides into three zones, each with it's own ambience and atmosphere; allowing a progressive atmosphere over time. This multi "boutique" nightclub environment is notable for its undefined spatial nature.