Stretch

London

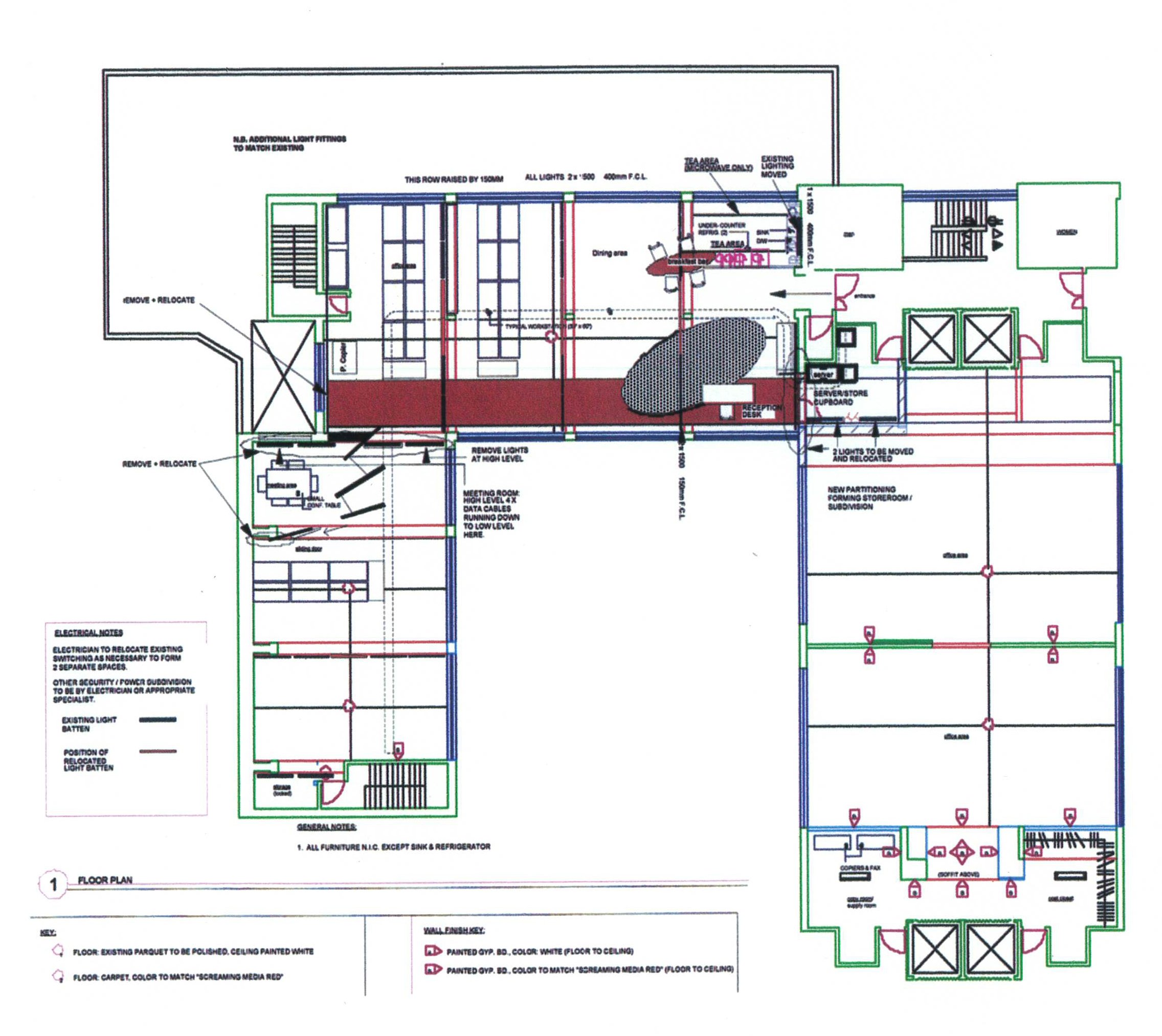
Reception and break-out spaces

The scheme is devised around an elliptical reception area and communal multifunctional table. All the main facilities are housed in or on its surface.

Intimacy is created by hung elements which increase the sense of linearity.

The framing elements of the entire office space are out in a sequence of unsaturated colours. The vibrant coloured directional floor plane reinforces this island feature.